Ville e Case Indipendenti in vendita 180 m², Coriano, località Coriano Mulazzano

Emilia-Romagna Rimini Coriano Coriano Mulazzano

Prezzo

€ 150.000

Terreno edif. vista mare con seminterrato già costruito
Rif.: 30067-d

  • Vendita
  • Contratto
  • Intera proprietà
  • Tipo di Proprietà
  • 6
  • Locali
  • 5
  • Camere
  • 3
  • Bagni
  • N.C.
  • Classe Energetica
  • Emilia-Romagna
  • Regione
  • Rimini
  • Provincia
  • Coriano
  • Comune
  • Coriano Mulazzano
  • Località

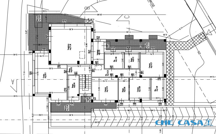
Coriano, località Mulazzano in posizione dominante sulla VISTA MARE, proponiamo interessante lotto edificabile di oltre 1000 mq dove sono già stati compiuti importanti lavori. Per la precisione tutta la palificazione di legge e tutto il seminterrato grezzo sono stati completati. La parte seminterrata di oltre 200 mq (buona parte fuori terra) potrà essere utilizzate come estensione della parte abitativa ovvero oltre a garage e cantina, tavernetta, studio, lavanderia. La copertura del grezzo totalmente piana, consente di poter comodamente edificare il piano abitativo al di sopra, ciò significata che si può proseguire con la costruzione in muratura, ma anche con prefabbricato. L'abitazione può arrivare sino a quasi 180 metri quadri, ovviamente si può optare per non utilizzarli tutti. Uno studio tecnico ha già pronte eventuali soluzioni abitative. Per info e visite ufficio Coriano Che-Casa 0541658587

Caratteristiche

Condizioni: Nuova Costruzione
Riscaldamento: Inesistente
Parcheggio: Garage doppio
Piano: Multipiano - piani edificio: 2

Foto

Terreno edif. vista mare con seminterrato già costruito - 1
Terreno edif. vista mare con seminterrato già costruito - 2
Terreno edif. vista mare con seminterrato già costruito - 3
Terreno edif. vista mare con seminterrato già costruito - 4
Terreno edif. vista mare con seminterrato già costruito - 5
Terreno edif. vista mare con seminterrato già costruito - 6
Terreno edif. vista mare con seminterrato già costruito - 7
Terreno edif. vista mare con seminterrato già costruito - 8

Mappa

Invia la tua ricerca all'agenzia

Descrivi l'immobile che cerchi e invia la ricerca all'agenzia.

Proponi il Tuo Immobile

Proponi il tuo immobile alla nostra agenzia.

Newsletter Immobiliare

Ricevi le nostre proposte immobiliari direttamente nella tua email!

Chat via WhatsApp